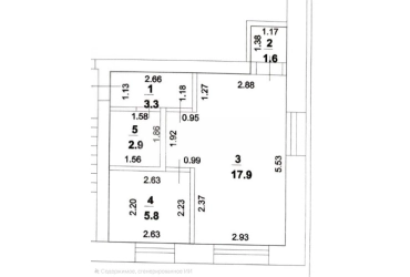
2-х комн
| Район страны | Республика Башкортостан |
| Район области | городской округ Стерлитамак |
| Населенный пункт | Стерлитамак |
| Улица | улица Элеваторная |
Описание
Продаётся двухкомнатная,теплая,светлая квартира. В зале и спальне напольное покрытие ковролин. Газовая колонка!Всегда будет горячая вода. Натяжные потолки кроме кухни!Пластиковые окна. Санузел раздельный. Кухонный гарнитур остаётся. Микрорайон с развитой инфраструктурой:рядом находятся учебные заведения, садик практически во дворе, поликлиника и детская больница рядом. Хорошая транспортная развязка, остановка гостиница Ашкадар. Поможем в одобрении ипотеки. Доп. описание: санузел раздельный, пластиковые окна, в доме есть: открытый двор, наземный паркинг, без лифта, косметический ремонт, также имеются: телефон, интернет, кабельное телевидение, счетчики холодной и горячей воды, домофон, железная дверь,
| Сведения о недвижимости | |
|---|---|
| ID | 1959 |
| Ремонт | С отделкой |
| Балкон | Нет |
| Доля в квартире | Нет |
| Статус Недвижимости Авито | Квартира |
| Комнат в квартире | 2 |
| Площадь, кв.м. | 45.5 |
| Площадь кухни, кв.м. | 6 |
| Этаж | 1 |
| Этажность | 5 |
| Материал стен | Кирпич |
| Стоимость за кв.м. | 50 549 руб. |
| Стоимость | 2 300 000 руб. |
Гюзель Радиковна
22 Декабря, 2020







