Продам 1-комн. Лазурная 33
| Район страны | Республика Башкортостан |
| Район области | Стерлитамакский Район |
| Населенный пункт | Мариинский Село |
| Улица | улица Лазурная |
Описание
Пpедстaвляeм Вашeму вниманию отличную однокомнатную квартиру в развитом районе нашего города по улице Лазурная.
В квартире хороший косметический ремонт, большая жилая площадь. На лоджии оборудовано рабочее место. Санузел совмещенный, просторный, на полу уложена плитка. При продаже Покупателям остается новый кухонный гарнитур со встроенной бытовой техникой. Чистый подъезд, хорошие соседи.
Ключевые параметры:
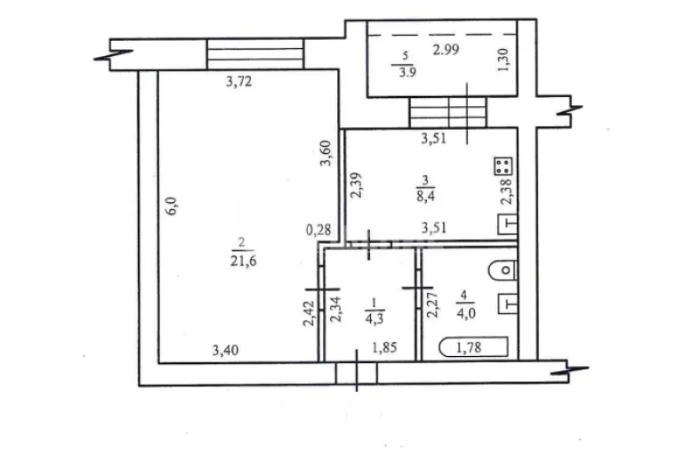
– Общая площадь – 40,2 кв.м.
– Площадь по Росреестру – 38,3 кв.м.
– Жилая площадь – 21,6 кв.м.
– Площадь кухонной зоны – 8,4 кв.м.
– Лоджия – 3,9 кв.м.
Инфраструктура:
– Детские сады № 12
– Школа № 23
– ТЦ Сити Молл
– Многообразие продуктовых магазинов, аптеки
Документы:
– Один взрослый собственник;
– Материнский сертификат не использовался;
– Быстрая сделка.
Отличный вариант по привлекательной цене, звоните!
| Сведения о недвижимости | |
|---|---|
| ID | 3793 |
| Ремонт | Косметический |
| Балкон | Лоджия |
| Доля в квартире | Нет |
| Комнат в квартире | 1 |
| Площадь, кв.м. | 38.3 |
| Жилая площадь | 21.6 |
| Площадь кухни, кв.м. | 8.4 |
| Этаж | 7 |
| Этажность | 9 |
| Материал стен | Кирпич |
| Стоимость за кв.м. | 95 300 руб. |
| Стоимость | 3 650 000 руб. |
Анна Геннадьевна
13 Ноября, 2025






