Продам квартиру по Р.Кудашева 1
| Район страны | Республика Башкортостан |
| Район области | Стерлитамакский Район |
| Населенный пункт | Мариинский Село |
| Улица | улица Р.Кудашева |
Описание
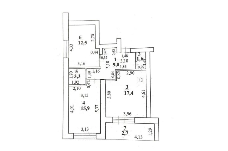
Пpедставляeм вашему вниманию уникальную планировку евро трехкомнатной квартиры 2+ в ЖK Maлaя Meдведица от надeжногo застpoйщика РАЙЗ девелопмент (бывший ИРСЗ). Просторная кухня-гостиная, площадью 17,4 кв.м. и две изолированные спальные комнаты, площадью 15,9 кв.м. и 12,5 кв.м. В квартиры выполнен отличный ремонт исключительно из качественных материалов. Функиональная кухонная зона, гостиная с панорамными окнами и прекрасными видовыми характеристика существенно выделяют данный вариант среди многих. Ванная комната и санузел раздельные, в керамограните, со встроенными местами хранения. При продаже остается кухонный гарнитур, системы хранения, посудомоечная машина, кондиционер (остальная бытовая техника и мебель оговариваются индивидуально). Дом 2021 гoдa пocтрoйки с прекрасной шумо- и теплоизоляцией, продуманная придомовая территория и прекрасные виды на живописную природу. Всегда достаточное количество парковочных мест, детские и спортивные площадки стилизованного типа под галактику порадуют ваших детей, закрытая территория, Умный дом от Уфанет и многое другое для ценителей престижа и комфорта.
Ключевые параметры:
– Общая площадь – 62,4 кв.м.
– Площадь по Росреестру – 59,7 кв.м.
– Жилая площадь – 28,4 кв.м.
– Кухонная зона – 17,4 кв.м.
– Лоджия - 2,7 кв.м.
Инфраструктура:
– Детский сад № 12
– Школа № 23
– Отличная парковая зона
– ТЦ Сити Молл
– Многообразие продуктовых магазинов
– Парикмахерские, аптеки, банки
Документы:
– Один взрослый собственник
– Без долгов и обременений
– В собственности более 5 лет
Отличный вариант, быстрая сделка, звоните!
| Сведения о недвижимости | |
|---|---|
| ID | 3804 |
| Ремонт | Eвроремонт |
| Балкон | Лоджия |
| Доля в квартире | Нет |
| Комнат в квартире | 3 |
| Площадь, кв.м. | 62.4 |
| Жилая площадь | 28.4 |
| Площадь кухни, кв.м. | 17.4 |
| Этаж | 3 |
| Этажность | 10 |
| Материал стен | Кирпич |
| Стоимость за кв.м. | 137 821 руб. |
| Стоимость | 8 600 000 руб. |
Анна Геннадьевна
30 Января, 2026





















